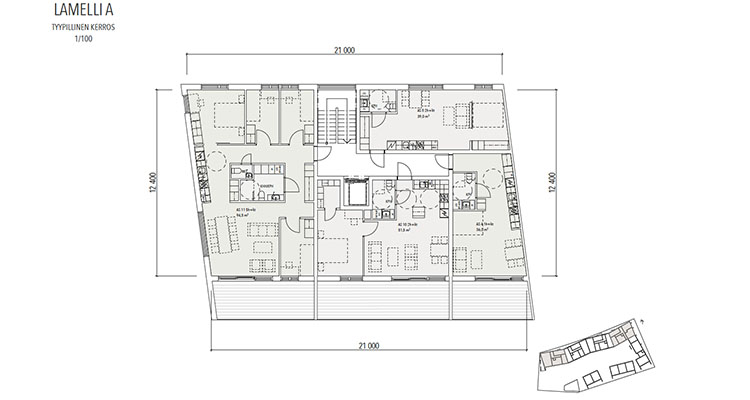
WOODEN APARTMENT BUILDINGS IN MASALA, KIRKKONUMMI. 2019-
|
SECTOR(S) Housing design |
LOCATION Kirkkonummi |
CLIENT Kirkkonummen vuokra-asunnot Oy |
STATUS Design has started |

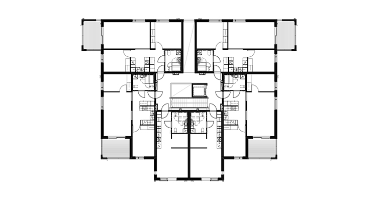
WOODEN APARTMENT BUILDING BLOCK IN KUNINKAANTAMMI AREA, HELSINKI. 2018
|
SECTOR(S) Housing design |
LOCATION Helsinki |
CLIENT EKE-rakennus Oy |
STATUS Competition Entry |







WOODEN APARTMENT BUILDING IN PÄHKINÄLEHTO AREA, SIPOO. 2018-
|
SECTOR(S) Housing design |
LOCATION Sipoo |
CLIENT ALFAMARK OY |
STATUS Design has started
|




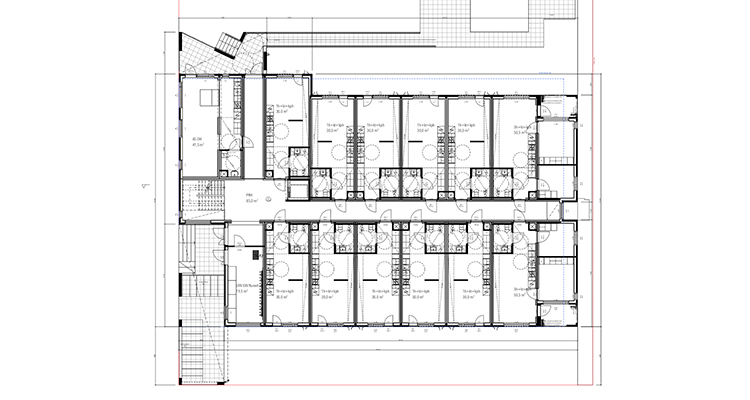
WOODEN APARTMENT BUILDING IN HERVANTA, TAMPERE. 2018-
|
SECTOR(S) Housing design |
LOCATION Hervanta, Tampere |
|
CLIENT YIT Rakennus OY
|
STATUS Construction completed
|








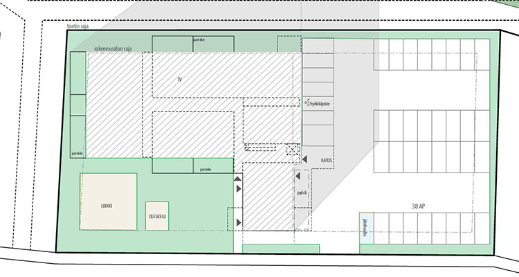
WOODEN APARTMENT BUILDING IN SUNDSBERG, KIRKKONUMMI. 2017-
|
SECTOR(S) Housing design |
LOCATION Sundsberg, Kirkkonummi |
CLIENT Alavus Tilaelementit Oy
|
STATUS Building has started |







WOODEN APARTMENT BUILDINGS IN MÄLTINKALLIO, UUSIKAUPUNKI. 2016-
|
SECTOR(S) Housing design |
LOCATION Mältinkallio, Uusikaupunki |
CLIENT RaceCon Consulting Oy
|
STATUS Construction has started
|




PAVILION AT KALARANTA, VAASA. 2016
|
SECTOR(S) Public building design |
LOCATION Kalaranta, Vaasa |
COLLABORATOR(S) Rakennus Mi & Re Ltd, Hirviniemi Capital Ltd |
STATUS Open competition, 2nd position |






HOUSING BLOCK IN VUORES, TAMPERE. 2016
|
SECTOR(S) Housing design, Landscape design |
LOCATION Vuores, Tampere |
CLIENT Stora Enso Plc |
STATUS Preliminary design, completed |





MODULAR WOODEN APARTMENT BUILDING SYSTEM. 2016
|
SECTOR(S) Housing design |
CLIENT Stora Enso Plc |
STATUS Completed |





WOODEN APARTMENT BUILDING MÄIHÄ, SEINÄJOKI. 2016
|
SECTOR(S) Housing design, Landscape design
|
LOCATION Pruukinranta, Seinäjoki |
CLIENT Lakea Ltd |
STATUS Construction completed |








HOUSING BLOCK IN MÄLTINKALLIO, UUSIKAUPUNKI. 2015
|
SECTOR(S) Housing design, Landscape design |
LOCATION Mältinkallio, Uusikaupunki |
CLIENT Lakea Ltd |
STATUS Concept design for the city plan, completed |






HOUSING BLOCK IN PRUUKINRANTA, SEINÄJOKI. 2014
|
SECTOR(S) Housing design, Landscape design |
LOCATION Pruukinranta, Seinäjoki |
CLIENT Lakea Ltd |
STATUS Concept design, completed |






PRIVATE VILLA TO SAIMAA ARCHIPELAGO. 2011
|
SECTOR(S) Housing design, Landscape design |
LOCATION Saimaa
|
CLIENT Private client
|
STATUS Construction completed
|
